Жаңалық-қуатталған тығыздағыштардың ішінде негізінен екі түрі бар: RC2055 және RC2056. Рухен итбалықтары көптеген жылдар бойы тығыздағыштардың дамуы мен өндірісін зерттеу жүргізді. Әр түрлі жағдайларға және әртүрлі қажеттіліктерге сәйкес, ол егжей-тегжейлі дизайнды жетілдірді.
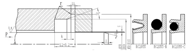
RC2055 - бұл айналмалы панельдік пломба, RC2055-B - айналмалы тісті тығыздағышы, және RC2055-C RC2055-C айналмалы у-тәрізді аралас тығыздалған. Үшеудің ойықтары өзара алмастырылады. Олар айналмалы біліктерге қолданылатын бір бағытты қысыммен жоғары функционалды тығыздағыштар. Олардың ішінде RC2055 айналмалы панель-штепсельдік плома тот баспайтын болаттан жасалған бұлақтардан және жоғары функционалды пластмалардан тұрады. RC2055-B және RC2055-C пайдалану кезінде, сәйкес эластомер материалдарын түсіндіру қажет.
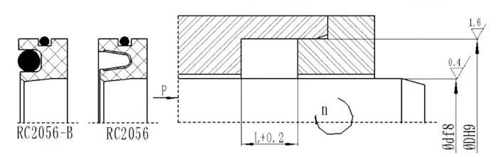
RC2056 - бұл айналмалы панель-штепсельдік пломба және RC2056-B RC2056-B - айналмалы у-тәрізді біріктірілген тығыздағыш. Ойықтар да өзгеруі мүмкін. Ол сонымен қатар айналмалы біліктерде қолдануға жарамды. Олардың ішінде RC2056 айналмалы панель-штепсельдік пломба тот баспайтын болаттан жасалған бұлақтардан және жоғары функционалды пластмалардан тұрады. RC2056-B пайдалану кезінде және сәйкес келетін эластомер материалдарын таңдау қажет.
Өнімнің ерекшеліктері мен қосымшалары:
Өнімнің ерекшеліктері:
Жоғары өнімділік: Тот баспайтын болат бұлақтар және жоғары функционалды пластмассалар керемет тығыздау мен тұрақтылықты қамтамасыз ету үшін біріктірілген.
Аудармасы: сериядағы өнімдердің ойық дизайны бірдей, бұл өзара алмастырғыш пен икемді бейімделуге мүмкіндік береді.
Кең таралған: Әр түрлі өндірістік қажеттіліктерге сәйкес келетін айналмалы біліктердің бір жақты қысыммен тығыздалуы үшін жарамды.
Қосымша эластомерлер: RC2055-B, RC2055-C, RC2056-B қолдауы бейімделуді жақсарту үшін жұмыс жағдайына сәйкес сәйкес эластомер материалдарын таңдауды қолдау.
Қолдану сценарийлері:
Айналмалы біліктердің бір жақты қысымы өндірістік жабдықтарға, инженерлік техникаларға, гидравликалық жүйелерге және т.б. үшін жарамды.
Мұнайхимия, энергетикалық жабдық, ауыр машиналар және т.б. сияқты жоғары функцияларды герметизация қажет болған жағдайлар
Техникалық артықшылықтары:
Тот баспайтын болат бұлақтар ұзақ мерзімді герметикалық әсерді қамтамасыз ету үшін тұрақты радиалды күш береді.
Жоғары функционалды пластмассалар мен эластомер материалдарының үйлесімі жоғары қысымға және жоғары жылдамдықтағы жұмыс жағдайына сәйкес келеді.
Groove алмастырылатын дизайн орнатуды және техникалық қызмет көрсетуді жеңілдетеді және пайдалану құнын төмендетеді.
Пайдалану ұсыныстары:
Нақты жұмыс жағдайына сәйкес тиісті тығыздағыш модель мен эластомер материалдарын таңдаңыз.
Мөр салғышқа зақым келмес үшін, орнату кезінде ойықтың таза екеніне көз жеткізіңіз.
RC2055
Қолданылатын жұмыс шарттары (шекті мәндер бір уақытта көрінбеуі керек)
| Қысым (MPA) | Температура (℃) | Жылдамдық (Ханым) | Амал | |||
| ≤35 | RC2055 | RC2055-b / c | RC2055 | RC2055-b | RC2055-c | Барлық дерлік сұйық және газ |
| -200 ~ + 250 | -35 ~ + 250 | <2м / с | <6м / с | <2м / с | ||
Материалдық таңдау
1
2. Сақина материалдарын герметизациялау Материалдар: ptfe1, ptfe2, ptfe3, ptfe4, upe, pk1, pk1, pk2 және т.б.
3. Тот баспайтын болаттан жасалған көктем: V-тәрізді көктем.
Тапсырыс беру мысал
Rc2055- vtfe4 + v біліктің диаметрі 40, герметизация сақиналы материал - PTFE4, тот баспайтын болаттан жасалған көктем v тәрізді көктем
RC2055-B-40-PTFE4 + R02 білігі диаметрі 40, герметикалық сақина материалы - PTFE4, сәйкестендіру O-сақина - Fluororubber
RC2055-C-40-PTFE4 + R02 білігі диаметрі 40, герметикалық сақина материалы - PTFE4, сәйкес O-сақина - Fluororubber
Ерекшелік параметрі кестесі (Параметр диапазонындағы барлық сипаттамалар)
| Диаметрі диаметрі D F8 | Диаметрі DH9 | Гросс диаметрі D1H10 | Шет тереңдігі L1 | Ойық ені Өшпін | Импорт Cmemfer k | Радиалды тазарту С макс | Түймесінің ұзындығы | патрондылық Еңбек | |
| 10МПА | 20МПА | ||||||||
| 5 ~ 19.9 | D + 5 | D + 9 | 0,85 -0.1 | 3.6 | 0.3 | 0.15 | 0.1 | Zmin = 0,8L | 0.8 |
| 20 ~ 39.9 | D + 7 | D + 12.5 | 1.35 -0.15 | 4.8 | 0.4 | 0.20 | 0.15 | 1.1 | |
| 40 ~ 400.9 | D + 10.5 | D + 17.5 | 1.8 -0.2 | 7.1 | 0.5 | 0.25 | 0.20 | 1.4 | |
| 401 ~ 1500 | D + 14 | D + 22 | 2.8 -0.2 | 9.5 | 0.5 | 0.30 | 0.25 | 1.6 | |
Ескерту: Айналмалы біліктің бетінің кермектігі HRC ≥ 58 болуы ұсынылады.
RC2056
Қолданылатын жұмыс шарттары (шекті мәндер бір уақытта көрінбеуі керек)
| Қысым (MPA) | Температура (℃) | Жылдамдық (Ханым) | Амал | ||
| ≤2 | RC2056 | RC2056-b | RC2056 | RC2056-b | Барлық дерлік сұйық және газ |
| -200 ~ + 250 | -35 ~ + 250 | <14m / s | <6м / с | ||
Материалдық таңдау
1
2. Сақина материалдарын герметизациялау Материалдар: ptfe1, ptfe2, ptfe3, ptfe4, upe, pk1, pk1, pk2 және т.б. 3. Тот баспайтын болаттан жасалған көктем: V-тәрізді көктем.
Тапсырыс беру мысал
RC2056-40 * 62 * 8-ptfe4 + v d * d * l, герметикалық сақина материалы - PTFE4, ал тот баспайтын болаттан жасалған көктем - V-тәрізді көктем RC2056-b-40 * 62 * 8-ptfe4 + r02 d * r02 d * d * l, герметикалық сақина материалы - PTFE4, және сәйкес O-сақина - Fluororubber



















Мекенжай
№1 Руйчэн жолы, Дунлиутинг индустриалды паркі, Ченьян ауданы, Циндао қаласы, Шаньдун провинциясы, Қытай
Тел
Электрондық пошта